Displaying: of 12

Agent Details

Michael Nance

Share

Hobby Farm Opportunity (128ha / 316 acres approx.)

$320,000

Section 114 264 Philips Road, Minbrie

2
1
2

Profile

Located just 15kms north of Cowell, on the corner of Philips Road and Hideaway Road, this manageable-sized hobby farm offers the chance to embrace a genuine rural lifestyle at an affordable price point.

Set on approximately 128 hectares (316 acres), the property includes a two-bedroom home, multiple sheds, mains power, solar, and town water supply. Whether your dream is to run a small-scale farming venture, keep livestock such as sheep, goats, or chooks, or perhaps enjoy space for a few horses, this versatile property can accommodate a range of possibilities.

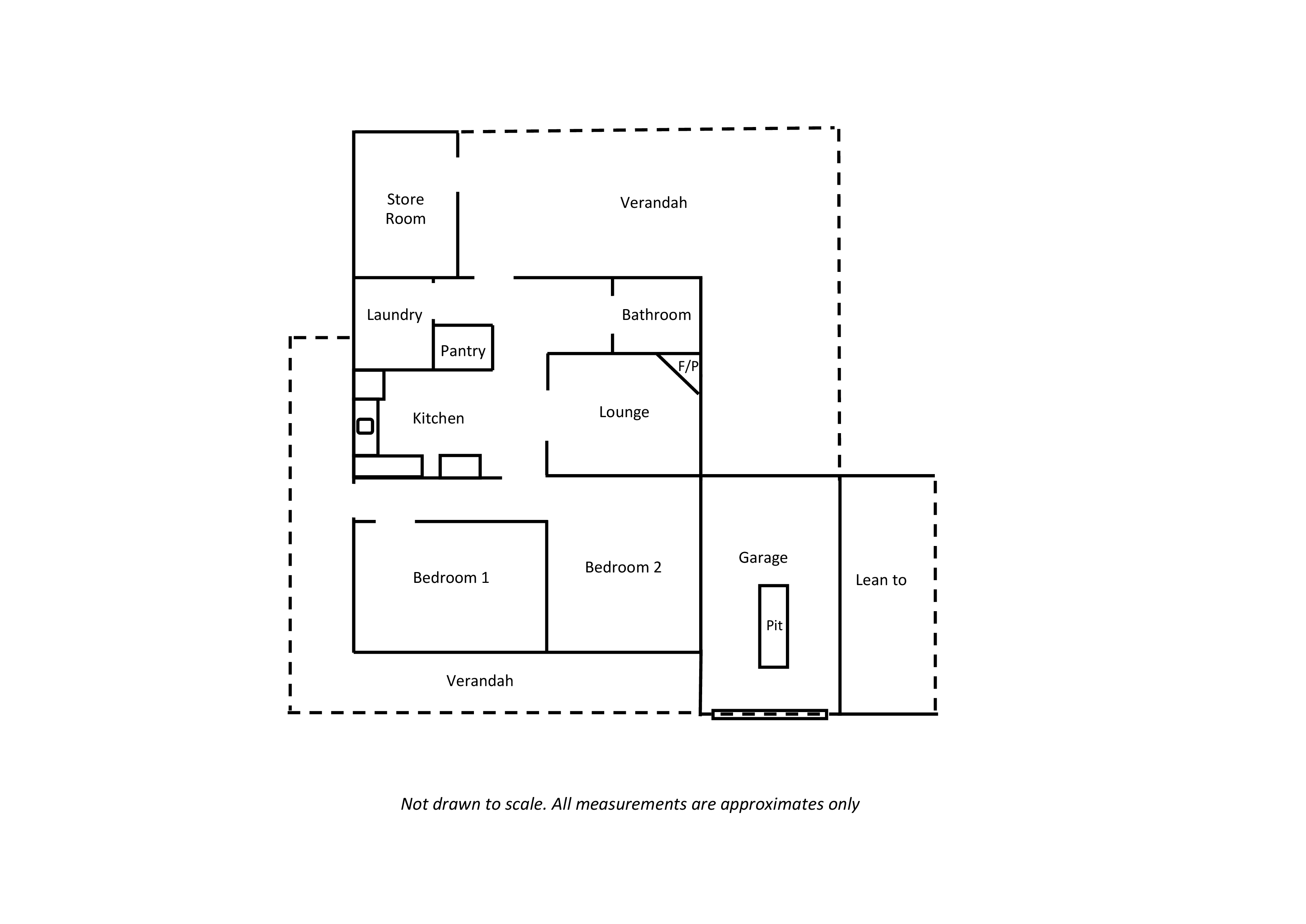
The home itself, believed to have been owner-built in the 1940s using locally made bricks, has a rough-and-ready appeal and is certainly in need of some TLC. Featuring 2 bedrooms with floating timber flooring, lounge room, farmhouse kitchen with walk-in pantry and an enclosed rear verandah - with some renovation and updating the home could provide comfortable accommodation for a small family.

Currently tenanted at $150 per week, it provides an immediate income stream, with the tenant happy to remain if desired. For those looking to owner-occupy, renovating the home would create a comfortable rural lifestyle base, with all required amenities, set on approximately 300 acres of arable land.

Only a short drive away, the well-serviced town of Cowell offers schools, shops, pubs, a supermarket, and even a marina and boat ramp.

This property presents an excellent opportunity for anyone seeking space, lifestyle, and affordability on the Eyre Peninsula.

For further information, contact Michael Nance on 0428 294141.



All information provided has been obtained from sources we believe to be accurate, however, we cannot guarantee the information is accurate and we accept no liability for any errors or omissions (including but not limited to a property's land size, floor plans and size, building age and condition). Interested parties should make their own enquiries and obtain their own legal advice.


RLA 264895

Features

2
Bedrooms
1
Bathrooms
2
Garage
128 Hectare approx.
Land Size

Send Enquiry

Your Details
Your Enquiry
  1. Please describe how we can be of assistance to you.

  2.  

    Would you like to join our mail list?

Submit